Quadrilocale in vendita

Larciano, Via Larciano
€ 195.000
Prezzo aggiornato
4 locali 4 locali
127 Mq 127 Mq
1 bagno 1 bagno

Quadrilocale in vendita

Larciano, Via Larciano

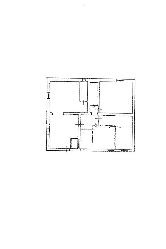
Descrizione annuncio

LARCIANO - LARCIANO CASTELLO

PIANO TERRA IN BIFAMILIARE IN STILE RUSTICO TOSCANO CON GIARDINO ESCLUSIVO

L' immobile è situato nel comune di Larciano, nella frazione di Larciano Castello, in una zona semicollinare, tranquilla e immersa nel verde a pochi minuti da tutti i principali servizi.

L’unità immobiliare si caratterizza per uno stile rustico toscano, valorizzato da travi in legno a vista e pavimenti in cotto.

L' abitazione si sviluppa su un unico livello per un totale di c. ca 130 mq.

A completare la proprietà un giardino esclusivo di c. ca 540 mq, ideale per chi desidera vivere spazi verdi risevati e fruibili.

Si accede all' abitazione tramite un pergolato in legno di 40 mq, ottimo per pranzi e cene all' aperto.

La zona giorno è composta da un' ampio soggiorno luminoso con camino e forno a legna, separato dalla cucina abitabile, a completare l' ambiente un bagno di servizio.

La zona notte ospita una camera matrimoniale, due camerette e un bagno finestrato servito di doccia.

L' immobile è stato costruito nel 2005 e presenta infissi in legno con doppio vetro, persiane in legno, zanzariere e portoncino blindato.

Fissa un appuntamento per vedere l'immobile contattandoci ai seguenti recapiti:

- chiamando lo 0572/501971

- scrivendoci su whatsapp al 353/4402959

- inviando una e-mail all'indirizzo di posta pthog@tecnocasa. it

oppure

visita le nostre pagine Facebook e Instagram 'Gruppo Tecnocasa Monsummano'

Ogni agenzia ha un proprio titolare ed è autonoma - Le presenti informazioni non costituiscono elemento contrattuale.

L'indirizzo riportato non individua l'esatta posizione dell'immobile ma individua la zona di riferimento.

Mostra tutto

Nelle vicinanze

Trasporto pubblico Trasporto pubblico
Larciano Castello
Larciano Castello
50 m
Larciano, 1274
Larciano, 1274
380 m
Scuole Scuole
Istituto Comprensivo Francesco Ferrucci
2,1 Km
Scuola dell'Infanzia Biccimurri
2,3 Km
Scuole
2,6 Km
Farmacia Farmacia
Farmacia
2,3 Km
San Baronto
2,4 Km
Ospedali Ospedali
Casa della Salute
2,5 Km
Supermercati Supermercati
Coop
2,3 Km
Negozi Negozi
Pasticceria Carli
2,4 Km
Peter Pan
2,4 Km
Negozi
2,4 Km
Doas
2,4 Km
Lory Intimo
2,5 Km
Bar Bar
Bar
1,6 Km
Bar Centrale
1,7 Km
Bar Verdi
2,5 Km
Ristoranti Ristoranti
Il Marzocco
440 m
Versilia com'era
1,6 Km
Agriturismo Il Poderino
1,7 Km
Agriturismo Borgo Casorelle
1,7 Km
La dispensa
1,7 Km
Mostra tutto

Caratteristiche

Rif.:
61182670
Piano:
Terra con giardino di 2
Totale piani:
2
Box:
1
Posti auto:
2
Camere da letto:
3
Mostra tutto
Prezzo Prezzo
€ 195.000
Rata mutuo Rata mutuo
€ 919 / mese
Spese annue Spese annue
€ 0
Proponi il tuo prezzoProponi il tuo prezzo

Classe Energetica

G
G
G
G
G
G
G
G
G
EP globale non rinnovabile:
414.26 kW h/m² anno
EP globale rinnovabile:
2.16 kW h/m² anno
EP invernale del fabbricato:
EP estiva del fabbricato:
Anno di costruzione:
2005
Riscaldamento:
Autonomo
Tipo impianto:
A radiatori
Tipo alimentazione:
GPL

Prezzo ridotto di €1 (7%%)

Ti interessa visionare l'immobile?

Fissa un appuntamento  Fissa un appuntamento

Richiedi informazioni

Clicca su Leggi per aprire l'informativa
* Questi campi sono obbligatori

Calcola il tuo mutuo

Semplice e senza impegno
Anticipo

( % )
Mutuo

( % )

pochi semplici passi

inserisci i tuoi dati
Questionario completato
Grazie per aver richiesto un appuntamento senza impegno con un nostro Consulente del Credito e Assicurativo.

Hai inserito correttamente tutti i dati necessari e a breve riceverai una e-mail con un link da convalidare per inviare i tuoi dati.
Affiliato
Studio Cintolese D.I.
P.zza Dei Martiri, 5 51015 Monsummano Terme (PT)

Il nostro staff


  • Emanuela Di Sandro
    Affiliata

  • Martina Fresolone
    Collaboratrice

  • Natasha Landini
    Responsabile

  • Laura Georgiana Mihai
    Collaboratrice

  • Adriana Ndoca
    Coordinatrice
P.zza Dei Martiri, 5 51015 Monsummano Terme (PT)
Zona: Monsummano Terme Cintolese
Mostra su mappa
Affiliato
Studio Cintolese D.I.
P.zza Dei Martiri, 5 51015 Monsummano Terme (PT)

2026 Tecnocasa Franchising S.p.A. - P. IVA 08365160152 - Via Monte Bianco 60/A 20089 Rozzano (MI). Ogni agenzia ha un proprio titolare ed è autonoma. Privacy policy | Policy utilizzo | Cookie policy