Porzione di trifamiliare in vendita

Lamporecchio, Via Cerbaia
€ 159.000
Prezzo aggiornato
3 locali 3 locali
135 Mq 135 Mq
1 bagno 1 bagno

Porzione di trifamiliare in vendita

Lamporecchio, Via Cerbaia

Descrizione annuncio

LAMPORECCHIO - CERBAIA

TERRATETTO CON VERANDA E SPAZIO ESTERNO RINNOVATO NEL 2020

PRONTO PER ESSERE ABITATO

L’immobile è situato nel comune di Lamporecchio, in una zona tranquilla e poco trafficata, a pochi minuti da tutti i principali servizi.


L'abitazione si distingue per la sua ottima disposizione degli ambienti e per la presenza di uno spazio esterno privato che assicura privacy e vivibilità, oltre a una veranda coperta ideale per godersi momenti di relax in ogni stagione.

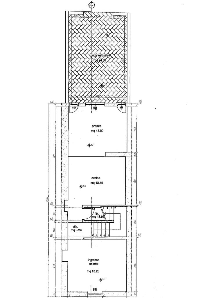
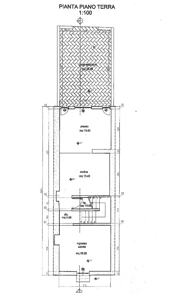
Al piano terra troviamo un accogliente soggiorno d’ingresso, luminoso e ben distribuito, che conduce alla zona giorno principale composta da una cucina open space con camino in muratura e zona pranzo.

L’ambiente, caldo e conviviale, offre l’accesso diretto allo spazio esterno tergale, perfetto per cene o pranzi all’aperto.

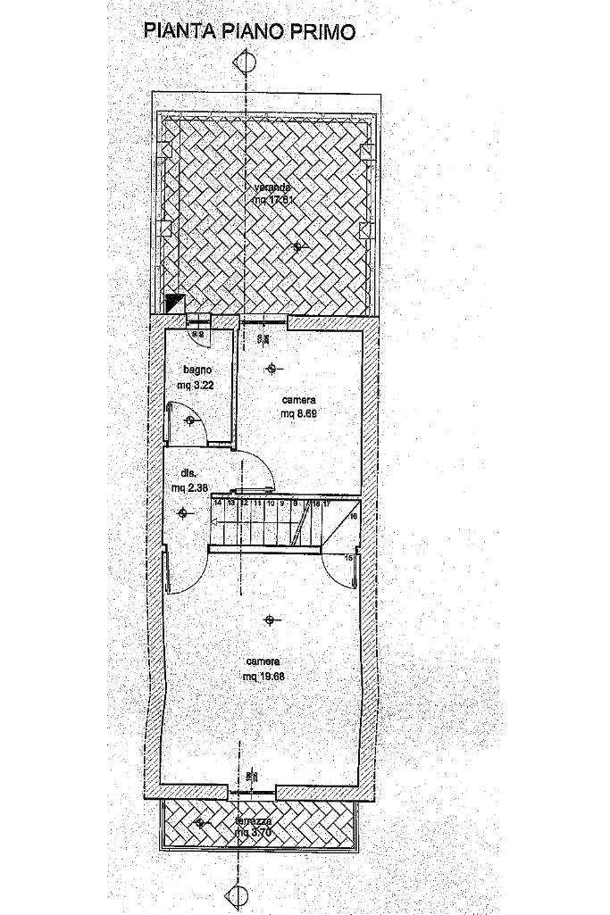
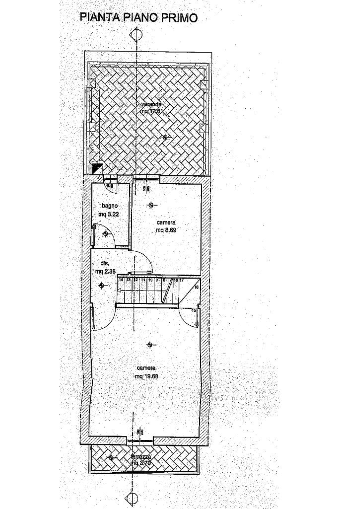
Al piano primo si sviluppa la zona notte con una camera matrimoniale dotata di terrazzo, una camerina e un bagno finestrato servito di doccia.

La soffitta, accessibile da scala interna, rappresenta un utile spazio di deposito.

Il terratetto dispone di infissi in legno con doppio vetro, zanzariere, inferriate al piano terra, condizionatori caldo/freddo in soggiorno e camera matrimoniale, e parquet nella zona notte.

Nel 2020 è stato oggetto di una ristrutturazione parziale, che ha riguardato il rifacimento completo del bagno, con relativi impianti idraulico ed elettrico, la sostituzione degli infissi, la posa del pavimento in parquet effetto legno bianco e la realizzazione della veranda chiusa.

Il tetto è in cemento armato con guaina impermeabilizzante.

Servito di metano, acquedotto e fognatura comunale.

Fissa un appuntamento per vedere l'immobile contattandoci ai seguenti recapiti:

- chiamando lo 0572/501971

- scrivendoci su whatsapp al 370/3618706

- inviando una e-mail all'indirizzo di posta pthog@tecnocasa. it

oppure

visita le nostre pagine Facebook e Instagram 'Gruppo Tecnocasa Monsummano'

Ogni agenzia ha un proprio titolare ed è autonoma - Le presenti informazioni non costituiscono elemento contrattuale.

L'indirizzo riportato non individua l'esatta posizione dell'immobile ma individua la zona di riferimento.

Mostra tutto

Nelle vicinanze

Trasporto pubblico Trasporto pubblico
Trasporto pubblico
1,2 Km
Via Marconi, 906 (Sp16)
Via Marconi, 906 (Sp16)
1,3 Km
Scuole Scuole
Scuole
1,6 Km
Istituto Comprensivo Francesco Ferrucci
1,7 Km
Scuola dell'Infanzia Biccimurri
2,6 Km
Farmacia Farmacia
Farmacia
1,6 Km
Ospedali Ospedali
Casa della Salute
1,5 Km
Supermercati Supermercati
Coop
1,4 Km
Negozi Negozi
Negozi
1,4 Km
Panificio Nencioni
1,5 Km
Max Moda
1,5 Km
Lory Intimo
1,6 Km
Doas
1,6 Km
Bar Bar
Bar
1,4 Km
Bar Verdi
1,5 Km
Bar Centrale
2,0 Km
Ristoranti Ristoranti
Antico Masetto
1,6 Km
Il Canniccio
1,7 Km
Ristorante Atman a Villa Rospigliosi
2,7 Km
Agriturismo Borgo Casorelle Lamporecchio
3,0 Km
Mostra tutto

Caratteristiche

Rif.:
61137399
Piano:
2 di 3 (Piano su più livelli)
Posti auto:
2
Terrazzi:
1
Camere da letto:
2
Arredamento:
Assente
Mostra tutto
Prezzo Prezzo
€ 159.000
Rata mutuo Rata mutuo
€ 749 / mese
Spese annue Spese annue
€ 0
Proponi il tuo prezzoProponi il tuo prezzo
Immobile valutato con T·Valuta

Classe Energetica

G
G
G
G
G
G
G
G
G
EP globale non rinnovabile:
414.26 kW h/m² anno
EP globale rinnovabile:
2.16 kW h/m² anno
EP invernale del fabbricato:
EP estiva del fabbricato:
Anno di costruzione:
1990
Riscaldamento:
Autonomo
Tipo impianto:
A radiatori
Tipo alimentazione:
Metano

Prezzo ridotto di €1 (2%%)

Ti interessa visionare l'immobile?

Fissa un appuntamento  Fissa un appuntamento

Richiedi informazioni

Clicca su Leggi per aprire l'informativa
* Questi campi sono obbligatori

Calcola il tuo mutuo

Semplice e senza impegno
Anticipo

( % )
Mutuo

( % )

pochi semplici passi

inserisci i tuoi dati
Questionario completato
Grazie per aver richiesto un appuntamento senza impegno con un nostro Consulente del Credito e Assicurativo.

Hai inserito correttamente tutti i dati necessari e a breve riceverai una e-mail con un link da convalidare per inviare i tuoi dati.
Affiliato
Studio Cintolese D.I.
P.zza Dei Martiri, 5 51015 Monsummano Terme (PT)

Il nostro staff


  • Emanuela Di Sandro
    Affiliata

  • Martina Fresolone
    Collaboratrice

  • Natasha Landini
    Responsabile

  • Laura Georgiana Mihai
    Collaboratrice

  • Adriana Ndoca
    Coordinatrice
P.zza Dei Martiri, 5 51015 Monsummano Terme (PT)
Zona: Monsummano Terme Cintolese
Mostra su mappa
Affiliato
Studio Cintolese D.I.
P.zza Dei Martiri, 5 51015 Monsummano Terme (PT)

2026 Tecnocasa Franchising S.p.A. - P. IVA 08365160152 - Via Monte Bianco 60/A 20089 Rozzano (MI). Ogni agenzia ha un proprio titolare ed è autonoma. Privacy policy | Policy utilizzo | Cookie policy