Trilocale in vendita

Lamporecchio, Via Montalbano - San Baronto
€ 88.000
3 locali 3 locali
77 Mq 77 Mq
1 bagno 1 bagno

Trilocale in vendita

Lamporecchio, Via Montalbano - San Baronto

Descrizione annuncio

LAMPORECCHIO - SAN BARONTO

PIANO PRIMO AD INGRESSO INDIPENDENTE CON CAMINO E GARAGE

L'immobile è situato nel comune di Lamporecchio, precisamente nella frazione di San Baronto, una zona tranquilla e a pochi minuti da tutti i principali servizi.

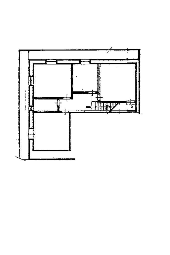
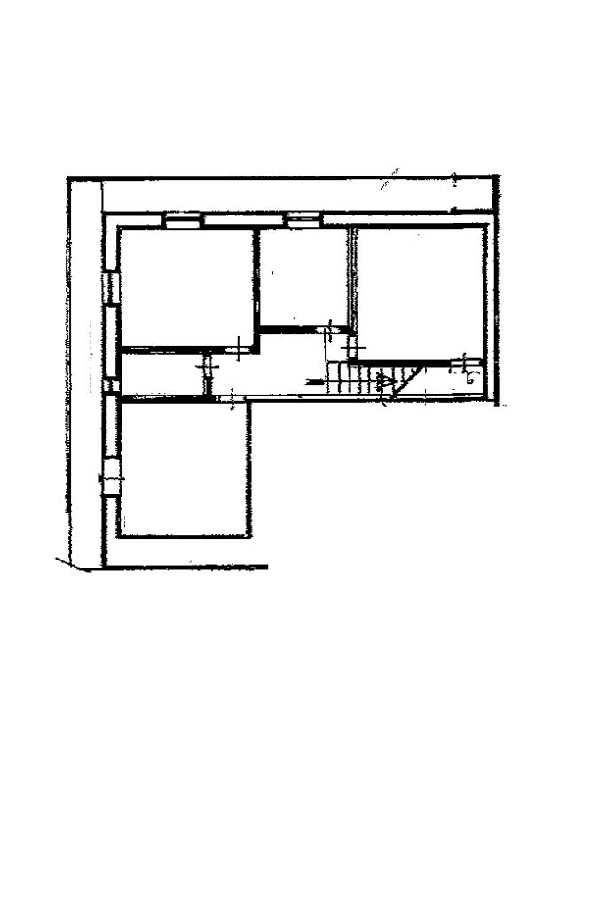
L'abitazione si sviluppa su un unico livello, per una superficie totale di c. ca 77 mq, corredata da un' ampio garage di c. ca 22 mq. A completare la prorpietà una terrazza panoramica di c. ca 20 mq.

Si accede all' immobile tramite un cancello pedonale, il quale ci conduce all' ingresso dell' abitazione.

La zona giorno è composta da un soggiorno luminoso con camino in muratura, con accesso diretto al soggiorno si accede ad un ampio disimpegno che distribuisce in modo funzionale tutti gli ambienti della casa, ed una cucina abitabile.

La zona notte è composta da due camere matrimoniali e da un bagno finestrato con doccia. A completare il tutto un pratico ripostiglio.

L'immobile si presenta da ristrutturare, caratteristica che lo rende un'ottima occasione per chi desidera personalizzare ogni ambiente e sfruttare al massimo il potenziale della proprietà.

Fissa un appuntamento per vedere l'immobile contattandoci ai seguenti recapiti:

- chiamando lo 0572/501971

- scrivendoci su whatsapp al 353/4402959 oppure al 370/3618706

- inviando una e-mail all'indirizzo di posta pthog@tecnocasa. it

oppure

visita le nostre pagine Facebook e Instagram 'Gruppo Tecnocasa Monsummano'

Ogni agenzia ha un proprio titolare ed è autonoma - Le presenti informazioni non costituiscono elemento contrattuale.

L'indirizzo riportato non individua l'esatta posizione dell'immobile ma individua la zona di riferimento.

Mostra tutto

Nelle vicinanze

Trasporto pubblico Trasporto pubblico
Trasporto pubblico
1,7 Km
Larciano Castello
Larciano Castello
2,4 Km
Farmacia Farmacia
San Baronto
230 m
Negozi Negozi
Negozi
2,9 Km
Pasticceria Carli
2,9 Km
Peter Pan
3,0 Km
Doas
3,0 Km
Bar Bar
Bar
1,7 Km
Ristoranti Ristoranti
Pizzeria Osteria Victoria
90 m
Ristoranti
820 m
Agriturismo Il Poderino
1,1 Km
La dispensa
1,2 Km
Agriturismo Borgo Casorelle
1,3 Km
Mostra tutto

Caratteristiche

Rif.:
61165867
Piano:
1 di 3 (Piano medio)
Box:
1
Posti auto:
1
Terrazzi:
1
Camere da letto:
2
Mostra tutto
Prezzo Prezzo
€ 88.000
Rata mutuo Rata mutuo
€ 415 / mese
Spese annue Spese annue
€ 0
Proponi il tuo prezzoProponi il tuo prezzo
Immobile valutato con T·Valuta

Classe Energetica

G
G
G
G
G
G
G
G
G
EP globale non rinnovabile:
414.26 kW h/m² anno
EP globale rinnovabile:
2.16 kW h/m² anno
EP invernale del fabbricato:
EP estiva del fabbricato:
Anno di costruzione:
1967
Riscaldamento:
Autonomo
Tipo impianto:
A radiatori
Tipo alimentazione:
Gasolio

Ti interessa visionare l'immobile?

Fissa un appuntamento  Fissa un appuntamento

Richiedi informazioni

Clicca su Leggi per aprire l'informativa
* Questi campi sono obbligatori

Calcola il tuo mutuo

Semplice e senza impegno
Anticipo

( % )
Mutuo

( % )

pochi semplici passi

inserisci i tuoi dati
Questionario completato
Grazie per aver richiesto un appuntamento senza impegno con un nostro Consulente del Credito e Assicurativo.

Hai inserito correttamente tutti i dati necessari e a breve riceverai una e-mail con un link da convalidare per inviare i tuoi dati.
Affiliato
Studio Cintolese D.I.
P.zza Dei Martiri, 5 51015 Monsummano Terme (PT)

Il nostro staff


  • Emanuela Di Sandro
    Affiliata

  • Martina Fresolone
    Collaboratrice

  • Natasha Landini
    Responsabile

  • Laura Georgiana Mihai
    Collaboratrice

  • Adriana Ndoca
    Coordinatrice
P.zza Dei Martiri, 5 51015 Monsummano Terme (PT)
Zona: Monsummano Terme Cintolese
Mostra su mappa
Affiliato
Studio Cintolese D.I.
P.zza Dei Martiri, 5 51015 Monsummano Terme (PT)

2026 Tecnocasa Franchising S.p.A. - P. IVA 08365160152 - Via Monte Bianco 60/A 20089 Rozzano (MI). Ogni agenzia ha un proprio titolare ed è autonoma. Privacy policy | Policy utilizzo | Cookie policy